花壇で季節の彩りを楽しむ新築ベーシック オープン外構
プラン内容 No.3370
※データは見積当時のものです
- 見積参考価格
- 50 万円
- 工事面積
- 49m 2
- 工事種別
- 新築外構
- 地形
- 四角
- 方位
- 北
- 車の台数
- 2台
- 登録日
- 2025-09-14
イメージパース・図面






コメント
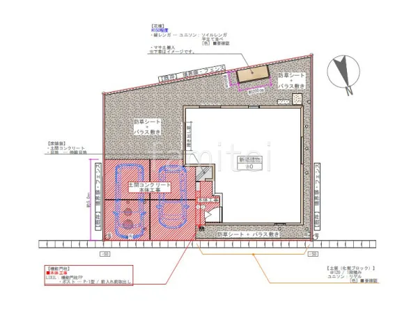
建物周り全体に防草シートと砂利を敷き、雑草の発生を大幅に抑えつつ、見た目もすっきりと整ったメンテナンスフリーな空間に仕上げました。 加えて、レンガを使用して花壇スペースを設け、外観に温かみと彩りをプラスしました。
※データは見積当時のものです






建物周り全体に防草シートと砂利を敷き、雑草の発生を大幅に抑えつつ、見た目もすっきりと整ったメンテナンスフリーな空間に仕上げました。 加えて、レンガを使用して花壇スペースを設け、外観に温かみと彩りをプラスしました。