カーポートと機能門柱でスタンダードな新築ベーシック オープン外構
プラン内容 No.3157
※データは見積当時のものです
- 見積参考価格
- 494 万円
- 工事面積
- 317m 2
- 工事種別
- 新築外構
- 地形
- 四角
- 方位
- 南東
- 車の台数
- 3台以上
- 登録日
- 2022-03-29
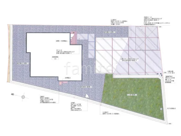
イメージパース・図面








コメント
駐車スペースに2台用カーポート LIXIL ネスカRを採用し、雨や日差しから車をしっかりと保護します。 玄関まわりには機能門柱 YKKAP シンプレオ1型を設置し、郵便受けやインターホンをスマートにまとめることで、使い勝手とデザイン性を両立しています。 お庭一面には人工芝を敷き、年間を通じて美しい緑を楽しめる快適な空間に仕上げました。








